Villa Manrique
House for a musician in Madrid
Located on the outskirts of Madrid, this project sought to give a new life to the family home of a music composer. The art and architecture loving client gave us carte blanche to carry out this radical intervention, giving free rein to the creativity of our team.
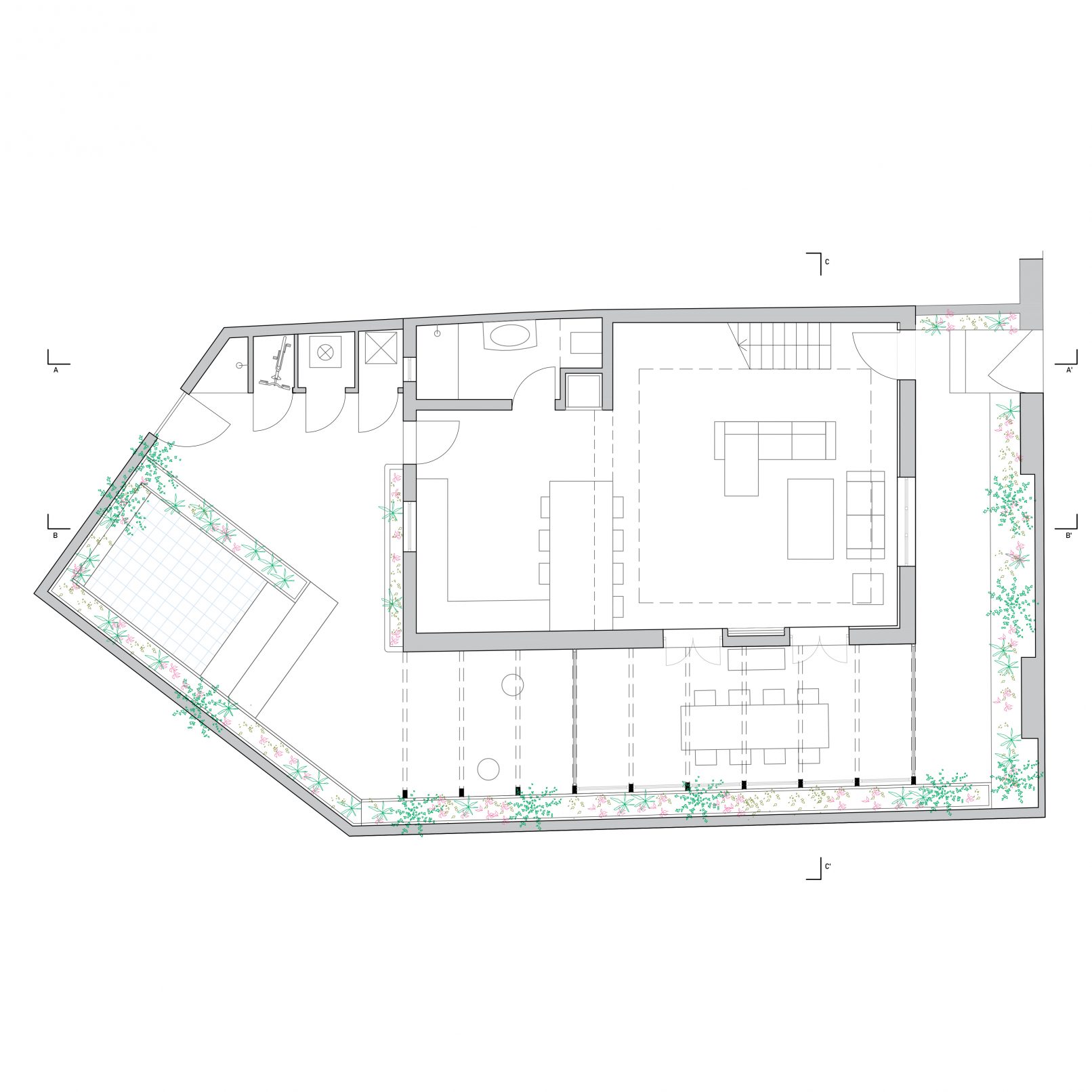
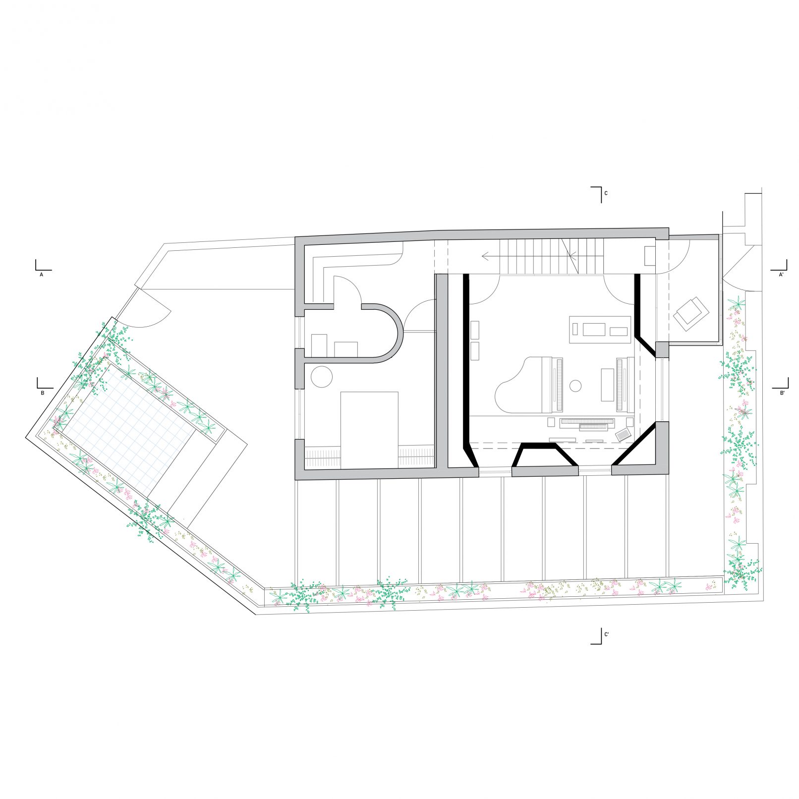
The building from the last century had a fragmented organization on different levels as a result of various extensions over time. The client was looking for a more open organization where he could house his recording studio, guest area, bedroom and large outdoor areas for events.
It was therefore decided to completely empty the existing structure to regularise the levels of the building, but with a twist. Instead of building conventional floors, it was decided to build a “music box” suspended between the two levels that would vertically divide the space. This box houses the recording studio inside and the impressive master bedroom sites above it under the old wooden roof of the house. This new structure never touches the old load-bearing walls of the building, allowing light to pass from the skylights on the roof to the ground floor where the new kitchen-living room is totally open.
The intervention is completed with an exterior landscaping project that includes a large glasshouse that serves as an outside living room and workshop, an storage area, and a Mediterranean-inspired swimming pool. All in all, a radical intervention that transforms a traditional construction into an example of the technical advances in experimental architecture in our time.
Client Private / Year 2020 / Location Madrid / Type Refurbishment – Intervention / Status Under Construction


















