The school
Boutique Hotel in a former fishermen's quarter
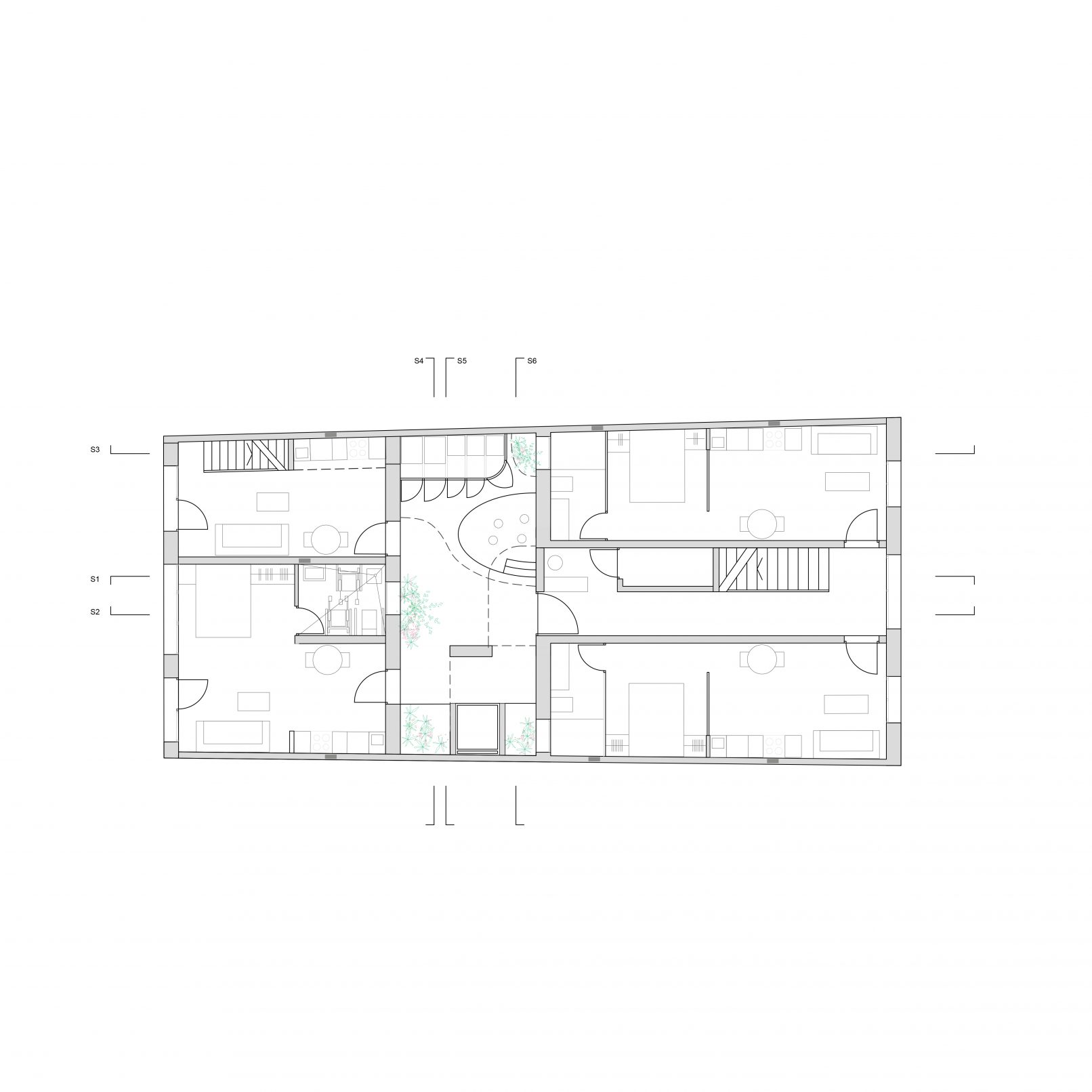
This transformation of an old school to become part of a five-building boutique hotel on the Mediterranean coast was a great challenge due to its characteristic circumstances. The building, located in a protected area of the city of Valencia, had to be renovated maintaining the protected facades of the old school, and the original structure with a central patio characteristic of the buildings in the area. In the operation, it was therefore decided to preserve all the protected elements, and also those that give character to this building from last century. For example, the large tower in the courtyard or the blackboards of the old classrooms.
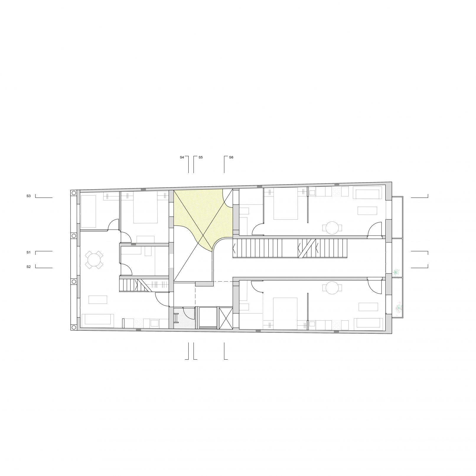
To achieve the connection between the two volumes of the building, a series of air-conditioned walkways were introduced in the patio, contrastrasting with the old building due to their modernity, and making the new intervention even more evident. Finally, a meeting area for the new residents is created in the courtyard under a double-curved green roof that adds vegetation to lower the high temperatures of the city of Valencia.
The result is a building made up of ten one- and two-room flats, with cross ventilation and large wooden windows, which illuminate interiors of great character thanks to the contrast between tradition and modernity.
Client Private / Year 2020 / Location Valencia / Type Restoration & Intervention / Status Under Construction















