The old bakery
Boutique Hotel and Restaurant
As part of the project of a boutique hotel composed of 5 buildings, the bakery seeks to rescue one of the most emblematic buildings of the neighborhood that was abandoned for a long time giving it a new use.
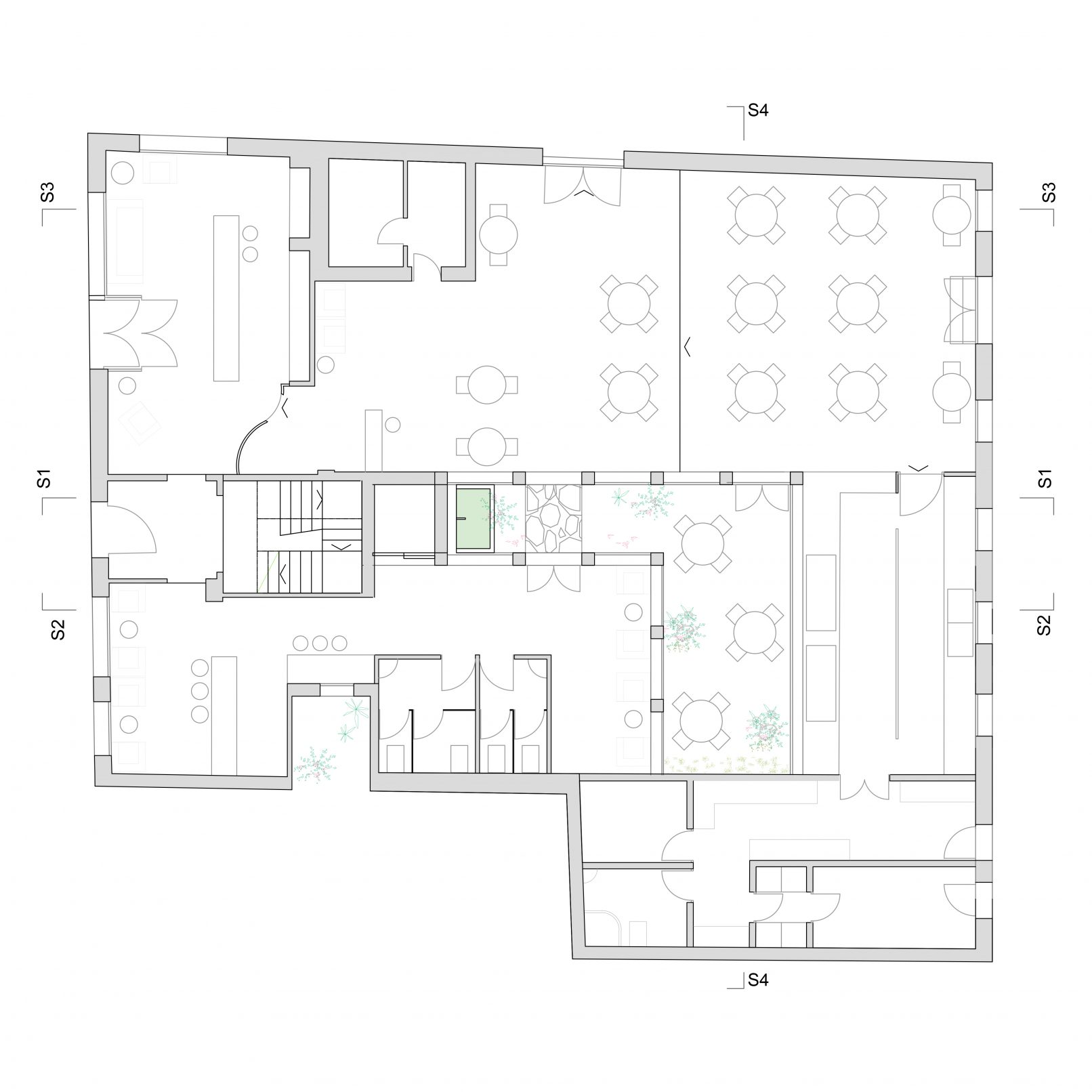
The existing building was the result of various extensions over the past century, which mixed classical styles with modernism or the 70s creative solutions. In this great chaos, the front façade, the staircase, and the old bakery on the ground floor stand out. And therefore these are the elements that have been preserved in the new extension, giving the building its character as a reminder of precious times.
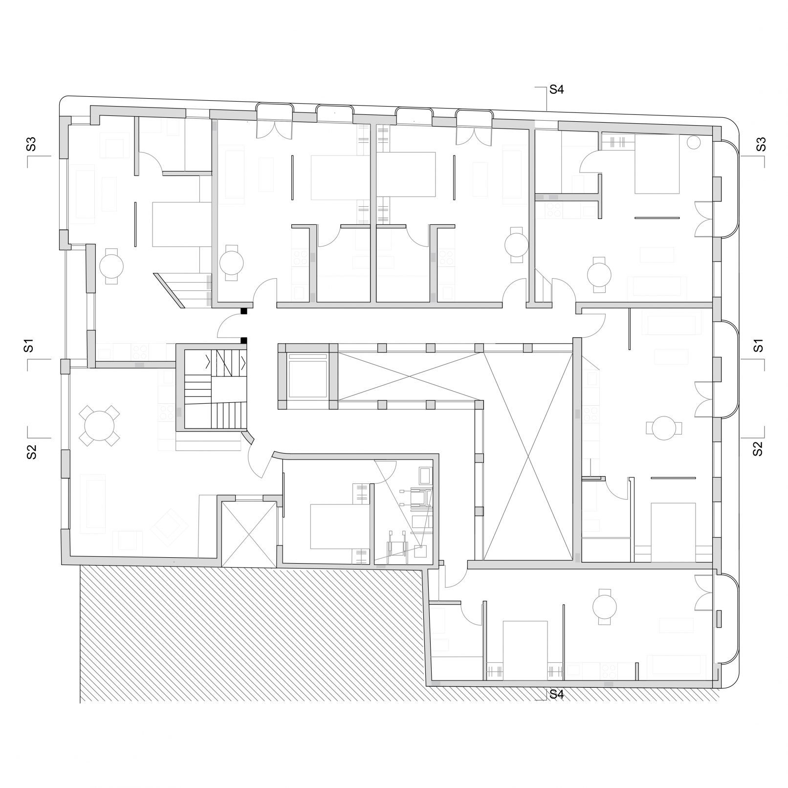
The intervention, therefore, plays with these elements of great value, combining them with modern details that coexist in a balanced way both in the interiors and in public areas. To restructure the building’s circulations, a typical element of Valencian architecture was chosen: the cloister. Around it, 14 rooms are distributed to be part of the aparthotel, while the ground floor is reserved for the patio of a new high-level restaurant that will be built recovering the old bakery. Finally, a large green rooftop terrace crowns the building, offering customers and visitors one of the best views of the rooftops in the neighborhood.
Client Private / Year 2020 / Location Valencia / Type Intervention / Status Under Construction













