Terraced house
When constraints become opportunity
As part of the project of a boutique hotel composed of 5 buildings, the terraced house was designed to offer a more modern and edgy alternative within the offer of the hotel.
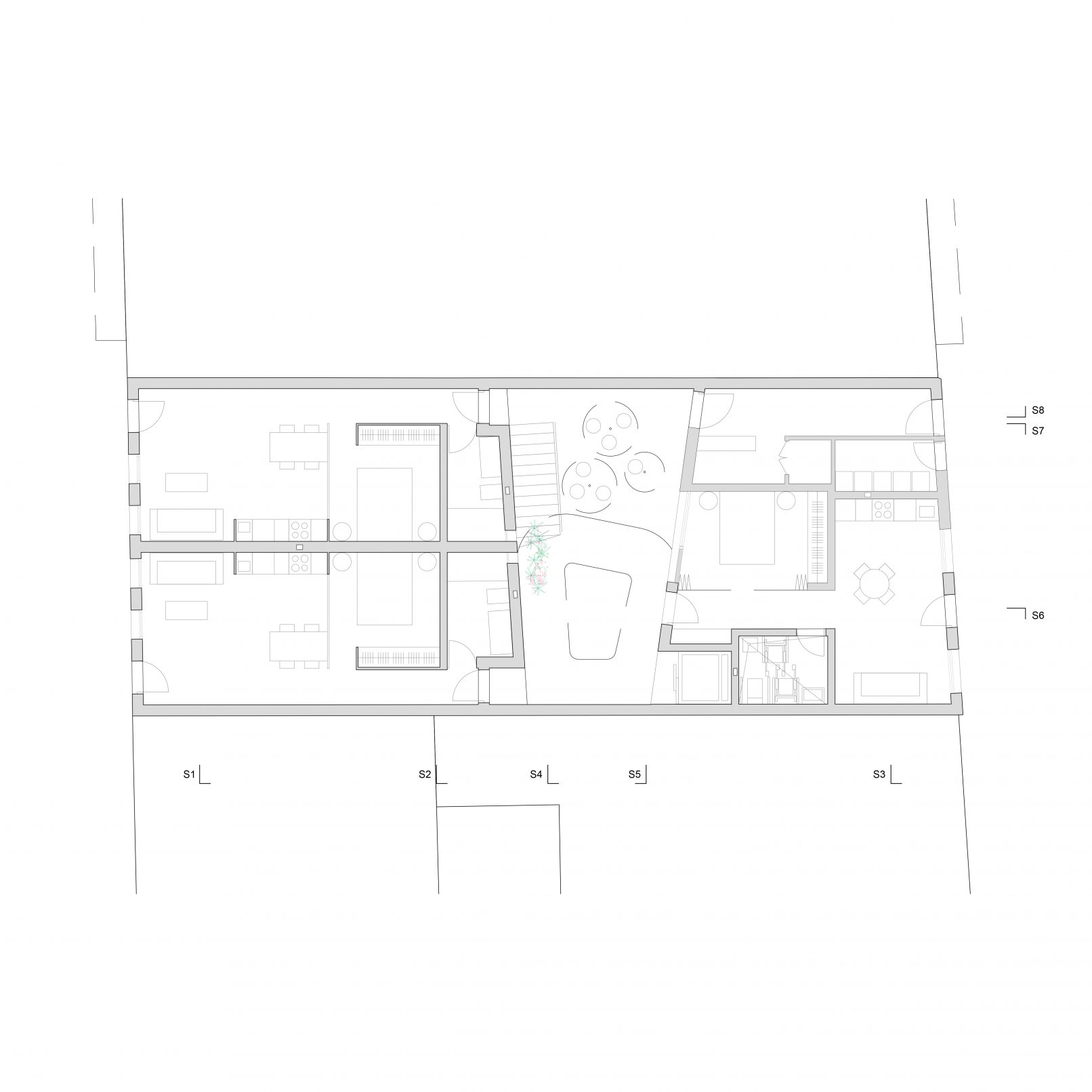
Its design responds to the special situation of the plot between party walls, where the neighbors had opened windows facing the property that was empty for many years. The new building seeks to respect the neighbors as much as possible, as well as to comply with the current regulations regarding views and easements between owners.
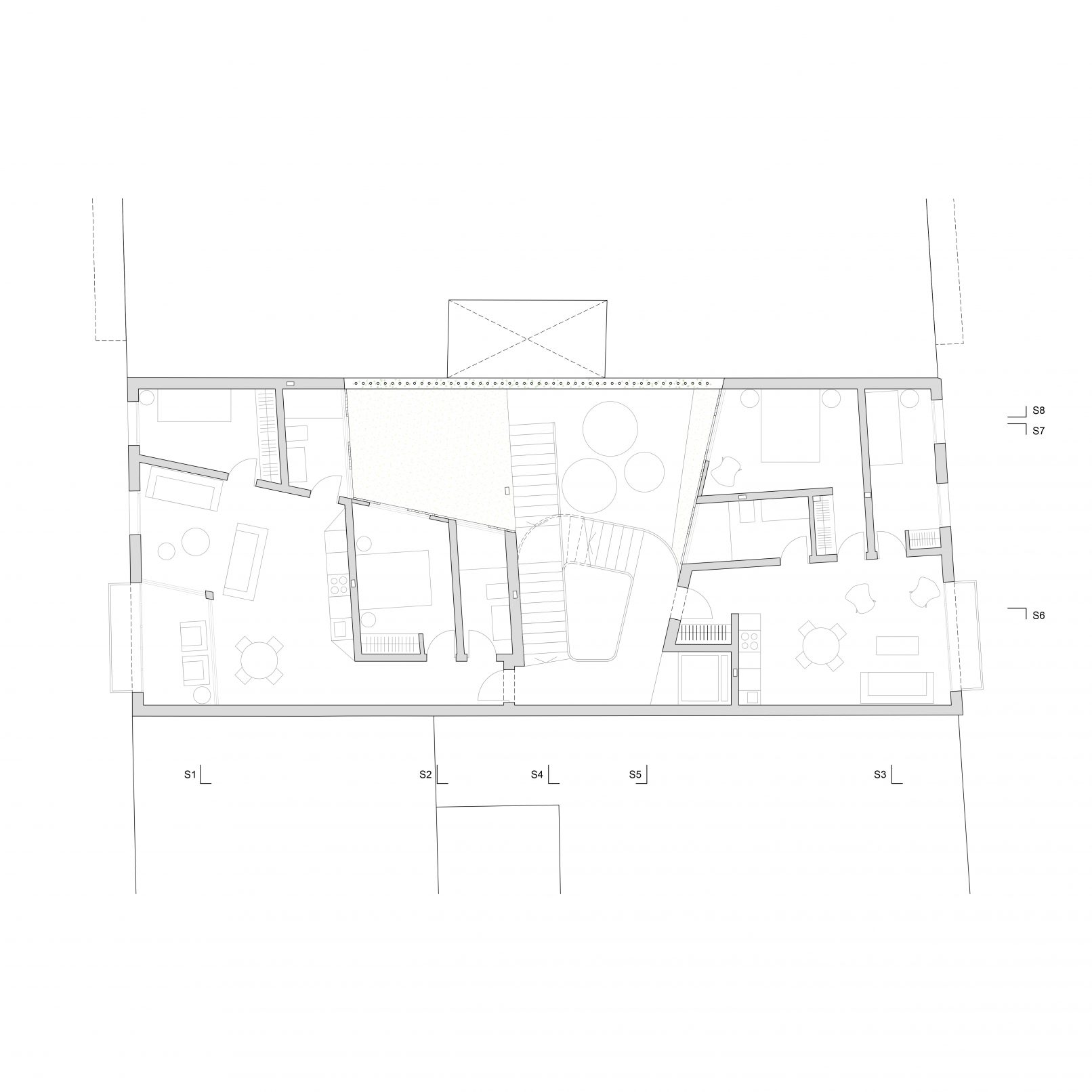
In response to these constraints, it was decided to introduce a courtyard that serves both the residents and the new occupants. Around it, the building grows in the form of terraced volumes full of vegetation that not only improve its thermal behavior, but also protect the privacy of the new owners with respect to the adjacent building. In addition, the connection between floors is made through an open sculptural staircase that helps to give character to the project.
The exterior and interior geometry follows the guidelines established by the courtyard, creating generous spaces inside, divided into daytime areas towards the exterior facades and nighttime areas towards the plant courtyard. However, the exterior facades respond to the canons of the historical buildings in the area, transforming this apartment block into a great box of surprises.
Client Private / Year 2020 / Location Valencia / Type New Construction / Status Under construction










