Haus Z
A house inspired by video games
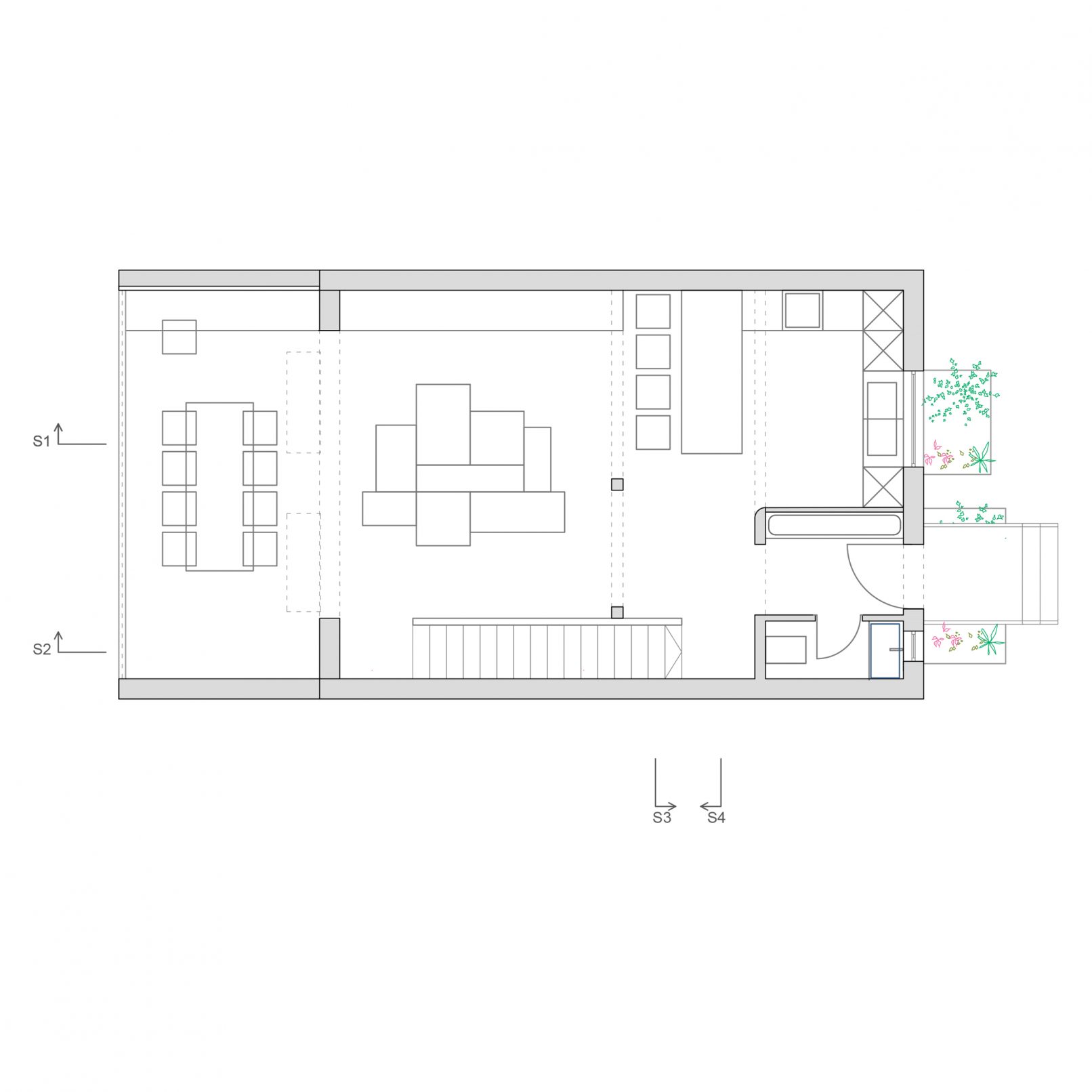
Located in the district of Zehlendorf in Berlin, this intervention in an existing house seeks to give a total change to its structure erasing the narrow spatial proportions of the interior typical of the 1960s.
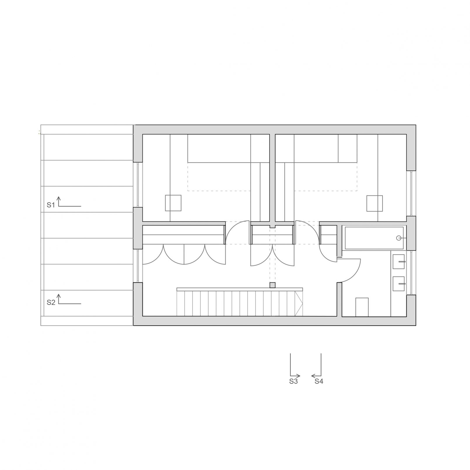
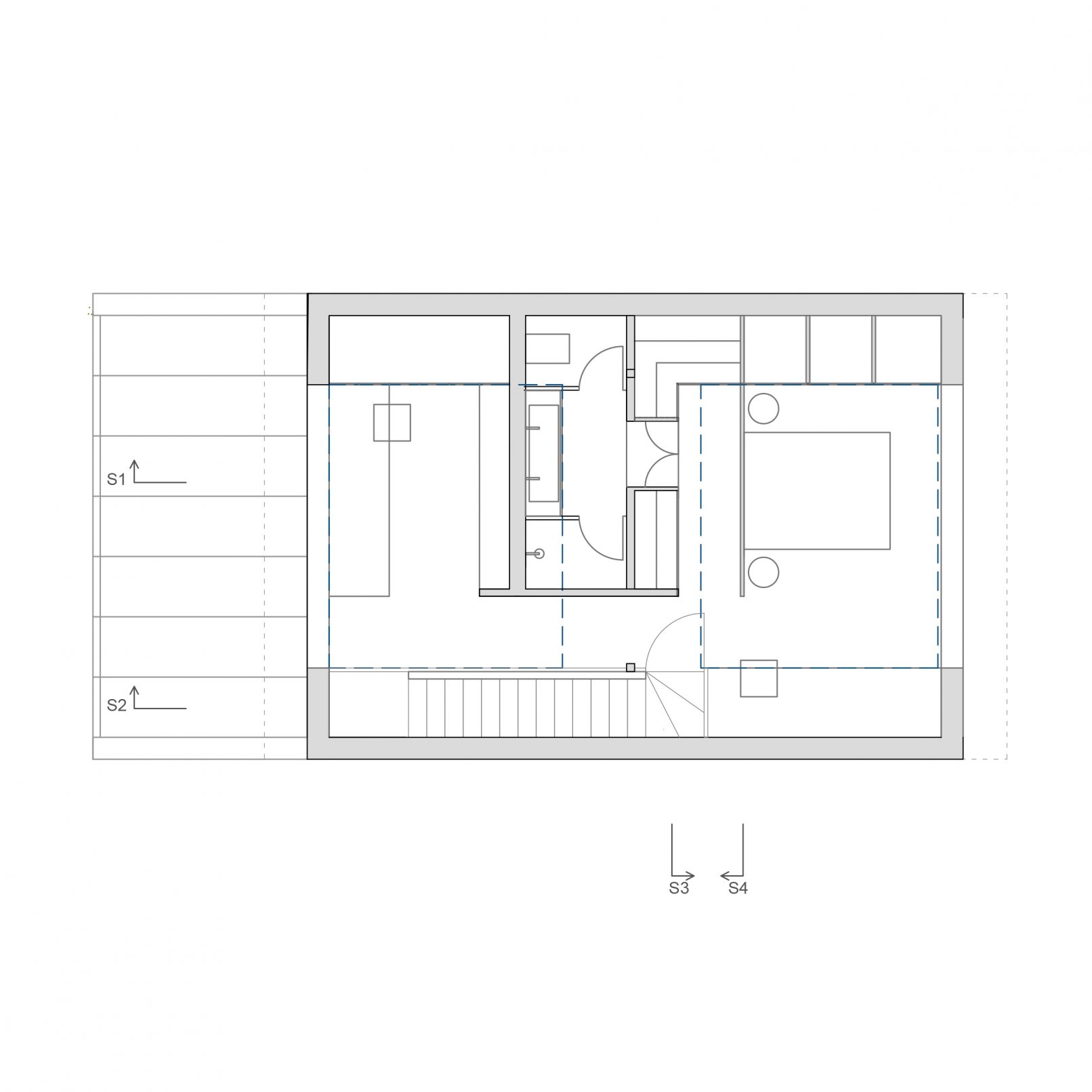
To achieve this, the old staircase core is demolished to create a new circulation with yellow metal stairs of better proportions, concentrated on one side of the house, allowing to free the space of all floors. At the same time, two new extensions improve the lighting and ventilation conditions. On the roof, which becomes the master bedroom, and on the access floor, creating a greater connection with the garden.
The interior is inspired by the world of video games, giving a wink to the father of the family, programmer, and a lover of the gamer world. A series of virtual white levels spread along the house, interspersed with volumes and color elements that host rooms, storage, and all the needs for this family of ex-pats living in the city of Berlin.
Client Private / Year 2020 / Location Berlin / Type Refurbishment / Status Under Constrution

















